25 Goode Street, Dubbo
House
A Heritage Home Transformed for Modern Living
Radiating classic charm & studded with beautifully crafted hallmarks of its circa 1890s heritage, the character-filled residence at 25 Goode Street is something special. Superbly restored & sympathetically enhanced for modern living, the cottage has distinctive bullnose verandahs with French doors opening from the bedrooms and living room.
Original features include polished floorboards, timber pannelled walls and high ceilings. You will fall in love with this special cottage the moment you walk through the door.
- Landmark cottage steeped in history
- Sympathetic upgrades for stylish modern living
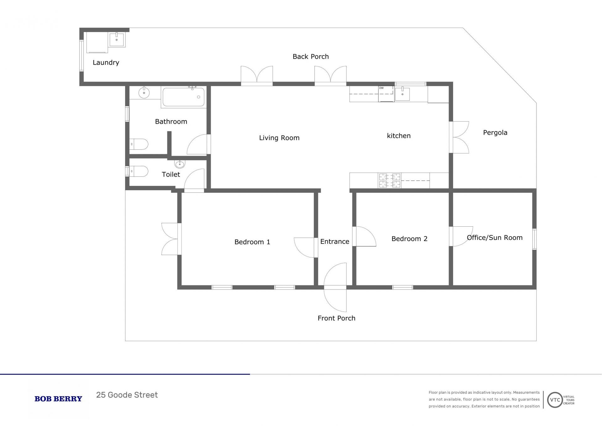
- 2 bedrooms, main with toilet and basin
- Office/sunroom off the second bedroom
- Living room with wood heater.
- Casual living & dining opening onto paved arbour
- Renovated country style timber kitchen with stone benches
- Classic bathroom with claw foot bath
- Evap A/C, ceiling fans, split system r/c a/c unit
- Lighting upgraded to down lights throughout
- Laundry
- Low maintenance yard with olive and peach tree
- Carport with access from Taylor St
- Stroll to parks, schools, cafe & Tamworth St shops
The information and figures contained in this material is supplied by the vendor and is unverified. Potential buyers should take all steps necessary to satisfy themselves regarding the information contained herein.
Original features include polished floorboards, timber pannelled walls and high ceilings. You will fall in love with this special cottage the moment you walk through the door.
- Landmark cottage steeped in history
- Sympathetic upgrades for stylish modern living
- 2 bedrooms, main with toilet and basin
- Office/sunroom off the second bedroom
- Living room with wood heater.
- Casual living & dining opening onto paved arbour
- Renovated country style timber kitchen with stone benches
- Classic bathroom with claw foot bath
- Evap A/C, ceiling fans, split system r/c a/c unit
- Lighting upgraded to down lights throughout
- Laundry
- Low maintenance yard with olive and peach tree
- Carport with access from Taylor St
- Stroll to parks, schools, cafe & Tamworth St shops
The information and figures contained in this material is supplied by the vendor and is unverified. Potential buyers should take all steps necessary to satisfy themselves regarding the information contained herein.
